

Expired
Days on Market: 204
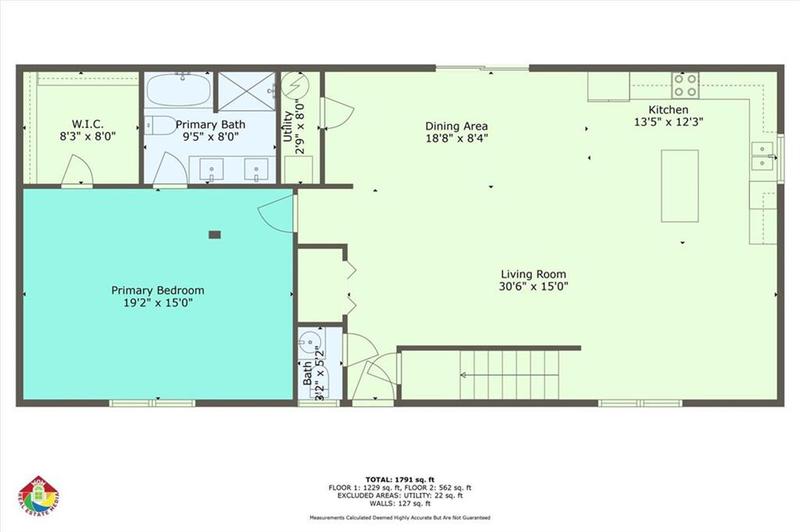
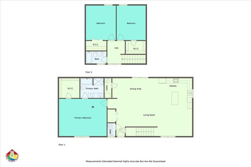
Back on the market due to no fault of the seller. Beautifully renovated 3 BR/2.5 BA home nestled on a fenced level lot. Blending timeless charm with updated style, this home includes a new roof, siding, windows, electrical, paint, cabinetry, light fixtures, hardwood floors, stone countertops, and updated baths. Perfect move-in-ready opportunity. Open-concept living with seamless flow into the eat-in kitchen, which is the true heart of the home. Enjoy modern blue cabinetry, a stylish tile backsplash, stainless steel appliances, stone countertops, and a large island perfect for gathering and entertaining. A cozy breakfast area offers the ideal spot to enjoy meals. The primary suite is conveniently located on the main floor. It features a tray ceiling, a generous walk-in closet, and a spa-like ensuite bathroom with a soaking tub, tiled shower, and double vanity. A half bath and laundry closet complete the main level. Upstairs, you'll find two additional bedrooms and a fully renovated bathroom, offering privacy and comfort for guests or family members. Outside, a wood deck off the back of the home provides a relaxing space for morning coffee or quiet country evenings. The level lot features new sod, a freshly paved driveway and new fence. This has a large front yard with plenty of space to play, garden, or unwind outdoors. Located just minutes from I-75 and historic downtown Calhoun, this home offers the ideal mix of peaceful living and convenient access to shops, dining, and more. Don't miss your chance to own this one-of-a-kind, fully renovated farmhouse—schedule your showing today!
Property Type:
Residential
Property Subtype:
Single Family Residence
Status:
Expired
MLS:
7563891
County:
Gordon - GA
Lot Size:
139x86x142x94
Year Built:
1981
MONDAY
8
DEC
TUESDAY
9
DEC
WEDNESDAY
10
DEC
It's free, with no obligation - cancel anytime.
Crown Molding, Tray Ceiling(s), Walk-In Closet(s)
Red Bud
Red Bud
Sonoraville
MONDAY
8
DEC
TUESDAY
9
DEC
WEDNESDAY
10
DEC
It's free, with no obligation - cancel anytime.






