Cartersville, Ga 30120
Active
Days on Market: 10
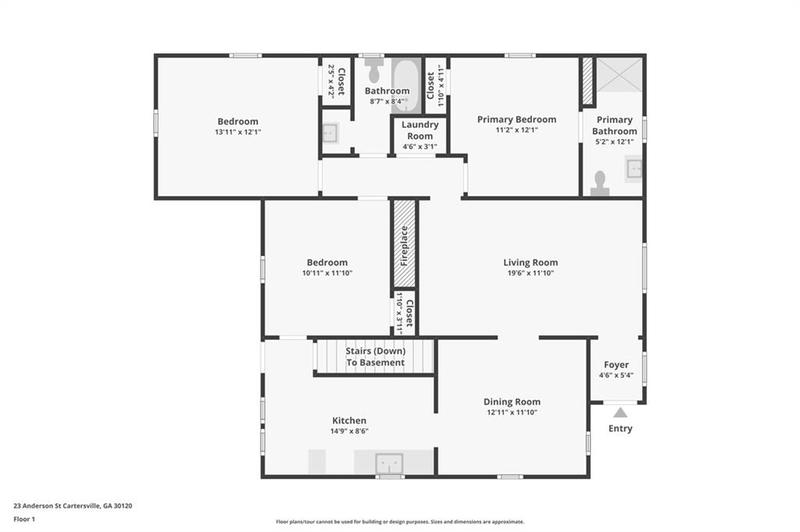
Welcome to 23 Anderson Street, a beautifully renovated 3-bedroom, 2-bathroom ranch just 5 minutes from downtown Cartersville and under 10 minutes from I-75. This home seamlessly blends classic charm with modern updates, featuring original hardwood floors, a spacious living room with a brick fireplace, and an open layout perfect for entertaining. The updated kitchen boasts contemporary finishes and natural light, leading to a dining area ideal for gatherings. The primary suite offers a private retreat with an en-suite bathroom, while two additional bedrooms provide flexibility for family, guests, or a home office. Enjoy a large, flat backyard perfect for outdoor activities. Key features include newly renovated interiors, luxury vinyl plank flooring, an unfinished basement with expansion potential, and all-new systems including the roof, electrical, HVAC, windows, and water heater. With its prime location and modern feel, this move-in-ready home is a must-see—schedule your showing today!
Property Type:
Residential
Property Subtype:
Single Family Residence
Status:
Active
MLS:
7526625
County:
Bartow - GA
Lot Size:
160 x 95
Year Built:
1949
TUESDAY
9
DEC
WEDNESDAY
10
DEC
THURSDAY
11
DEC
It's free, with no obligation - cancel anytime.
Entrance Foyer
Cartersville
Cartersville
Cartersville
TUESDAY
9
DEC
WEDNESDAY
10
DEC
THURSDAY
11
DEC
It's free, with no obligation - cancel anytime.






