Adairsville, Ga 30103
Active
Days on Market: 204
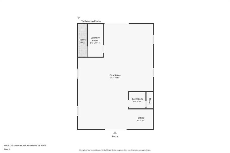
BUYER COULD NOT PRODUCE FUNDS so it is your lucky day this one is back and priced BELOW appraisal!! Walk into instant equity!! Now featuring the main living area, large upscale custom kitchen, and open concept dining room all downstairs. With the addition of a custom vent hood, large island with built in shelves, a huge walk-in pantry and an eat-at bar this kitchen will be an entertainers dream! Upstairs you will find another loft/family room for those cozy nights staying in, the primary owner's suite, as well as an additional room- perfect for a home office or flex room! Set on nearly 13 acres, this turnkey equestrian property is where high-end design meets ultimate functionality. Fully perimeter-fenced, it features four cross-fenced paddocks with brand-new RAM fencing and an additional large pasture with wire fencing-ready for horses, livestock, or your vision. Step through the custom 8'x8' black steel double doors with frosted glass into the barndominium style home. The hand-painted Venetian plaster walls, built-in custom features, and 10-foot ceilings create an airy, sophisticated feel downstairs. Massive 7'x3' picture windows flood the space with natural light, making the main living area pop with the convenience of a half bath right there. At the back, a striking 10'x10' insulated carriage door with stained chevron wood adds a bold, custom touch. Upstairs, soaring 15-foot vaulted ceilings elevate the space. The primary suite is designed for comfort, offering a large walk-in closet, double vanity, and a large walk-in shower all while blending modern and sleek finishes in every corner. Designed for serious equestrians, the barn is fully equipped with six stalls, all featuring auto waterers and RAM stall mattress systems. Each stall has space for a private run out paddock and the barn also includes an indoor wash rack, feed room, and tack room. A separate hay storage area with a garage door makes loading and unloading seamless, while an interior finished section of the barn is complete with a full bathroom. (PLEASE NOTE: Drywall and insulation are now complete in the barn since pictures have been taken). Above the barn, a versatile living space is designed to impress. A large open room with accordion-style glass doors opens the full length of the wall to a viewing deck overlooking the lighted sand arena. Whether you need a home office, art studio, or future living space, this area is ready to be customized. Two additional rooms serve as guest suites or future bedrooms. Additional Features include: Detached two-car garage, storage shed for extra equipment or workspace, lighted sand arena that is perfect for training or evening rides and the added bonus of a round pen with M10 footing. This property is turnkey for equestrians and ideal for those who appreciate high-end finishes, modern design, and flexible living spaces-all in a stunning rural setting.
Property Type:
Residential
Property Subtype:
Single Family Residence
Status:
Active
MLS:
7522038
County:
Bartow - GA
Lot Size:
x 546
Year Built:
2021
THURSDAY
11
DEC
FRIDAY
12
DEC
SATURDAY
13
DEC
It's free, with no obligation - cancel anytime.
Entrance Foyer, High Speed Internet
Adairsville
Adairsville
Adairsville
THURSDAY
11
DEC
FRIDAY
12
DEC
SATURDAY
13
DEC
It's free, with no obligation - cancel anytime.






