

Withdrawn
Days on Market: 239
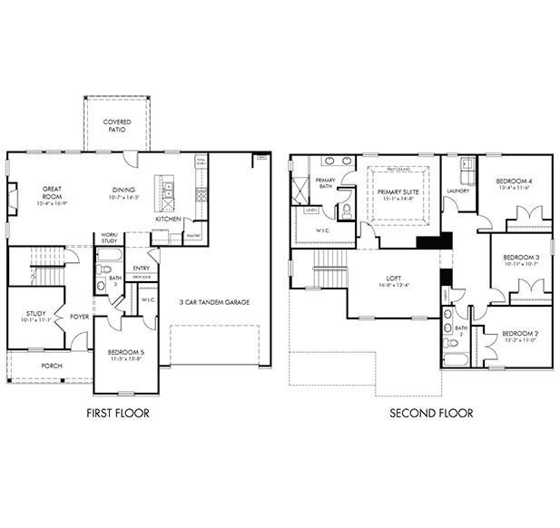
Brand new, energy-efficient home available by May 2025! The Jamestown floorplan offers 5 bedrooms, 3 bathrooms and tandem garage. Wake up on the right side of the bed in the luxurious primary suite, complete with dual sinks and a walk-in closet. Downstairs, a useful study and guest bedroom fits your lifestyle. Explore the charm of Braselton at our newest community, Vines at Mill Creek. The community will feature a variety of single-family homes and a community cabana, a refreshing pool, and a fun-filled playground. Enjoy the changing season at nearby Chateau Elan with a round of golf, a sunset dinner, and end the night with a massage at the spa. Get your steps in at Braselton Town Green where events, farmers markets, and festivals often take place. Each of our homes is built with innovative, energy-efficient features designed to help you enjoy more savings, better health, real comfort and peace of mind.
Property Type:
Residential
Property Subtype:
Single Family Residence
Status:
Withdrawn
MLS:
7553327
County:
Gwinnett - GA
Lot Size:
110x80
Year Built:
2025
MONDAY
8
DEC
TUESDAY
9
DEC
WEDNESDAY
10
DEC
It's free, with no obligation - cancel anytime.
Disappearing Attic Stairs, Double Vanity, Entrance Foyer, High Ceilings 9 ft Main, High Ceilings 9 ft Upper, Smart Home, Walk-In Closet(s)
Duncan Creek
Osborne
Mill Creek
MONDAY
8
DEC
TUESDAY
9
DEC
WEDNESDAY
10
DEC
It's free, with no obligation - cancel anytime.






