Villa Rica, Ga 30180
Pending
Days on Market: 26
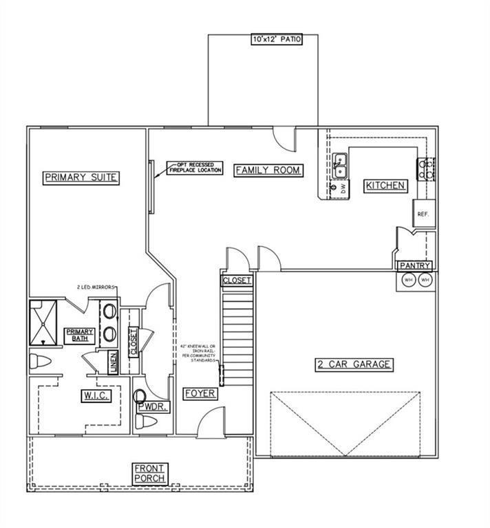
The Mira features a DOUBLE PRIMARY BEDROOM PLAN... Primary bedroom on main level has full bathroom and walk-in closet. Granite countertops in kitchen offer ample counter space to prepare those gourmet meals. Kitchen area flows into expansive family room with fireplace. Upper level features a oversized second primary bedroom, double sinks in bath, and large walk-in closet. Bedrooms three and four have direct access to Jack-Jill bathroom. All new homes at Twin Oaks have granite throughout , whole house blinds, and electric charging station in garage, all included ! Come and make this Executive home your own !
Property Type:
Residential
Property Subtype:
Single Family Residence
Status:
Pending
MLS:
7525761
County:
Carroll - GA
Lot Size:
75x135
Year Built:
2025
THURSDAY
11
DEC
FRIDAY
12
DEC
SATURDAY
13
DEC
It's free, with no obligation - cancel anytime.
Double Vanity, Entrance Foyer, His and Hers Closets, Permanent Attic Stairs, Walk-In Closet(s)
Ithica
Bay Springs
Villa Rica
THURSDAY
11
DEC
FRIDAY
12
DEC
SATURDAY
13
DEC
It's free, with no obligation - cancel anytime.






